Località
Seleziona una o più opzioni
Tipologia Immobile
Seleziona una o più opzioni
Range di Prezzi
Da
A
Metri quadrati
Da
A
Numero Camere
Da
A
Reset
Cerca
Torna indietro
In antico borgo trilocale ristrutturato con vista lago
GARDONE RIVIERA
€ 235.000
Gra1949
62 mq 74 com 2 1 1

Descrizione

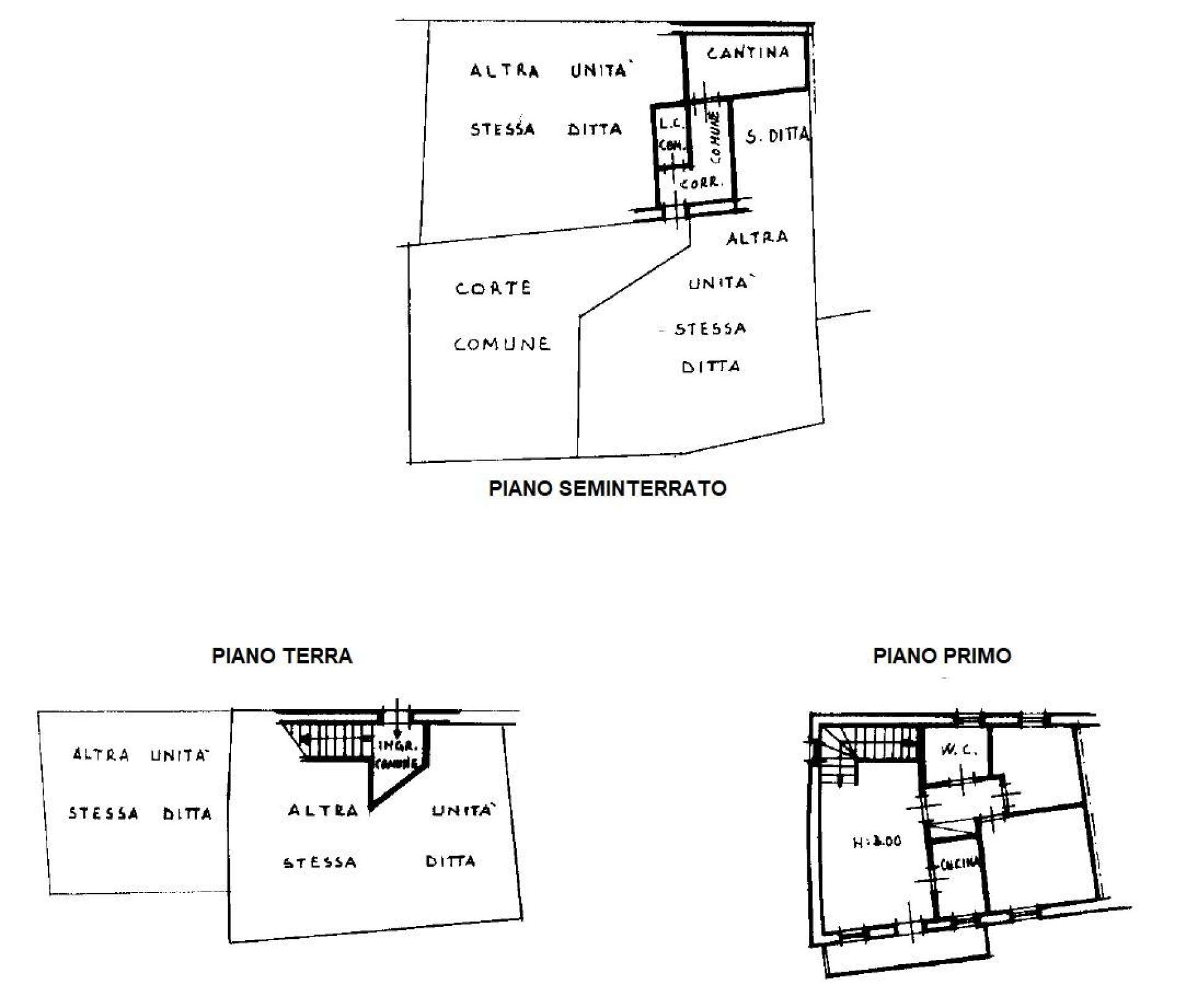
Nel suggestivo borgo di Tresnico, piccola e autentica frazione di Gardone Riviera, a pochi chilometri dalle rive del lago, proponiamo in vendita un affascinante trilocale recentemente ristrutturato, inserito in un piccolo contesto privo di spese condominiali.
L'appartamento si trova all'interno di un antico fabbricato in pietra naturale, sapientemente recuperato nel rispetto della sua anima originaria.
L'ingresso è al piano terra; una scala interna conduce al primo e ultimo piano, dove si sviluppa una splendida mansarda con travi a vista sbiancate.
La zona giorno è luminosa e accogliente: il soggiorno, con angolo cottura a vista, gode di un accesso diretto alla balconata panoramica, dalla quale si apre una meravigliosa vista lago, percepibile già dall'interno.
Un ambiente ideale per rilassarsi e godere del paesaggio.
La zona notte comprende una camera matrimoniale con incantevole vista lago, una cameretta singola e un bagno finestrato.
La ristrutturazione, effettuata nel 2018, ha interessato il bagno, gli impianti idraulico ed elettrico, i serramenti, la climatizzazione e la finitura delle pareti interne, valorizzando al contempo gli elementi originali dell'abitazione: travi arrotondate a vista, pavimenti in cotto e spesse murature perimetrali in pietra, che conferiscono calore e carattere all'ambiente.
Completano la proprietà un garage — vera rarità nei piccoli borghi storici — e una comoda cantina.
L'immobile viene venduto completo di arredi ed è subito abitabile.
Una proposta unica ideale come abitazione principale per single o per una coppia, come seconda casa per una piccola famiglia o come investimento per chi è alla ricerca di charme, tranquillità e una vista lago impareggiabile.

Prestazione energetica

  • Classe energetica: G
  • A+
  • A
  • B
  • C
  • D
  • E
  • F
  • G

Dettagli

  • Tipologia Appartamento
  • Condizioni Ristrutturato
  • Riscaldamento
  • Superfice 62 mq
  • Superfice Commerciale 74 mq
  • Bagni 1
  • Camere 2
  • Garage 1 (17 mq)
  • Balcone (5 mq)
  • Cantina (9 mq)

Posizione

€ 235.000
Gra1949

Sede di Riferimento

Reboma Toscolano Maderno

Piazza Caduti, 7, 25088 Toscolano Maderno

Recapiti

0365.541665 toscolano@reboma.it